The Client

Professional Builder And Investor
• Loan Purpose
Cash Out And New Construction
• Loan Structure
12 Months Interest Only

The Investment

• Purchase Price
$140,000
• Renovation Budget
$491,972
• Loan Amount
$504,000
• Cash Available for Purchase
$12,028 (Cash Out)
• Cash Available for Renovation
$491,972

The ABL Partnership

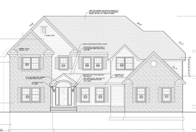
This experienced real estate investor and builder came to Brick Moon Capital for a hard money new construction loan in order to build a 5-bed 3.5 bath 4,000 square-foot single family home in Freehold NJ. This investor has built several identical properties in the area (including the lot next door!), all with high end finishes that end up selling in less than 30 days. We can’t wait to see the finished project!

The Results

• After Repair Value
$865,000
• Sale Price
Back To All Case Studies